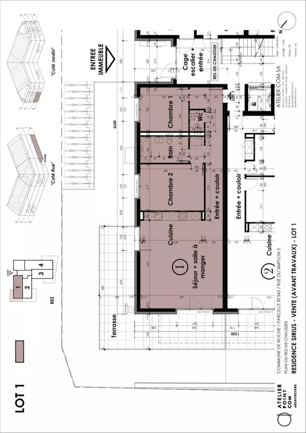
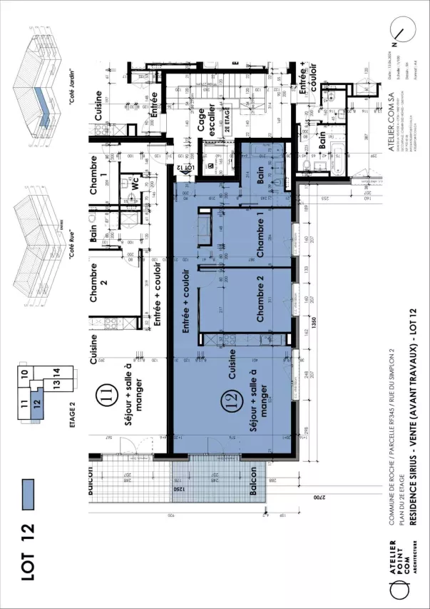
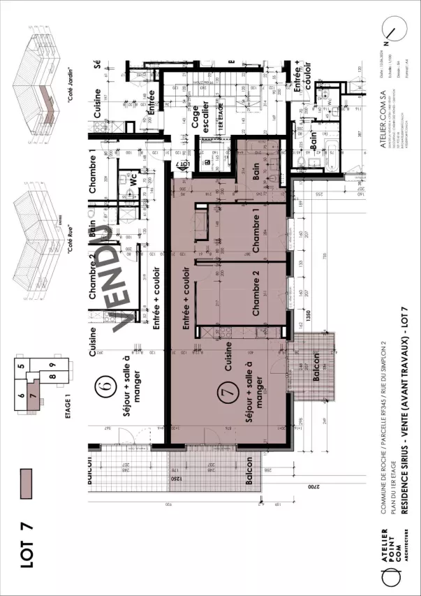
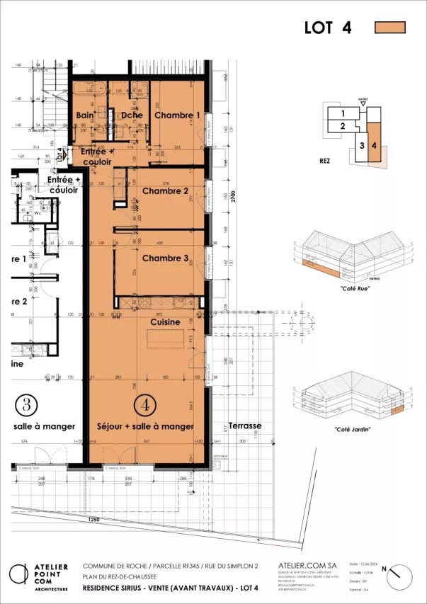
Dans une PPE de 18 appartements, cet appartement de 3.5 pièces dispose d'une surface habitable de 84 m2 et d'un balcon de 10 m2.
Il est composé comme suit :
- Hall d'entrée et couloir
- 2 chambres à coucher
- WC visiteurs
- Salle de bains
- Cuisine ouverte
- Séjour/salle à manger accès sur la terrasse
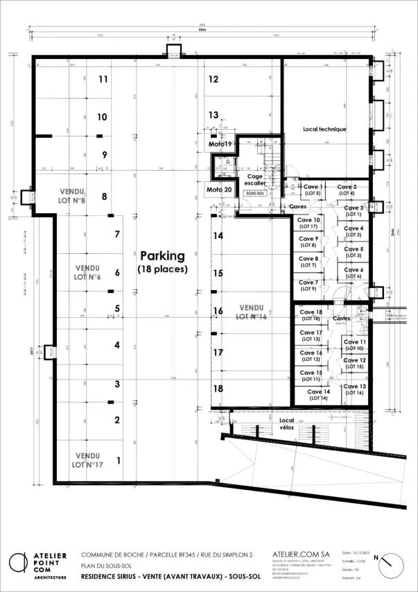
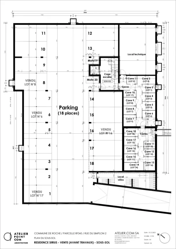
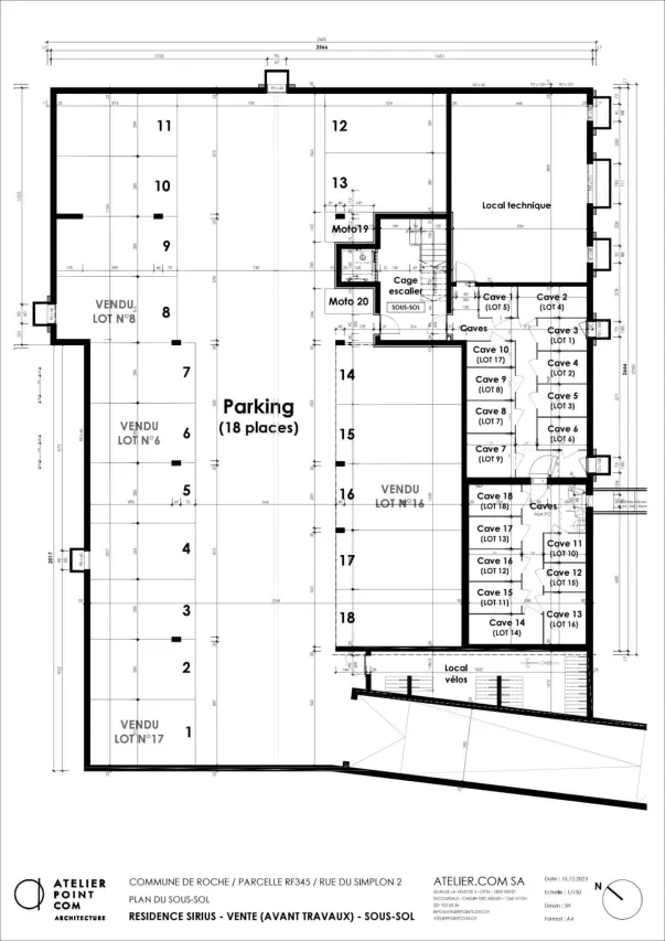
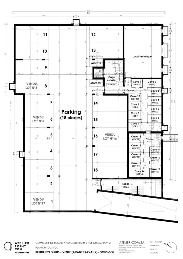
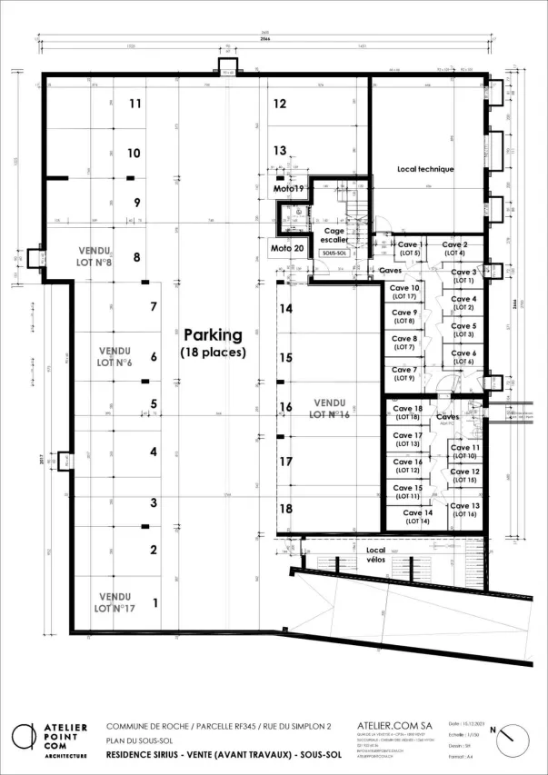
- Cave
Une place de parc intérieure est disponible en sus du prix à 35'000.-
Début des travaux février 2025.
Livraison automne 2026.
Lien vers le site web de la promotion : https://residence-sirius.ch/index.php
Concerne : Appartements à vendre 3.5 pièces à Roche-vd Vaud