Dans une PPE de 18 appartements, cet appartement de 3.5 pièces au Rez avec jardin d'environ 70 m2 dispose d'une surface habitable de 84 m2 et d'une terrasse de 39 m2.
Il est composé comme suit :
- Hall d'entrée et couloir
- 2 chambres à coucher
- WC visiteurs
- Salle de bains
- Cuisine ouverte
- Séjour/salle à manger accès sur la terrasse
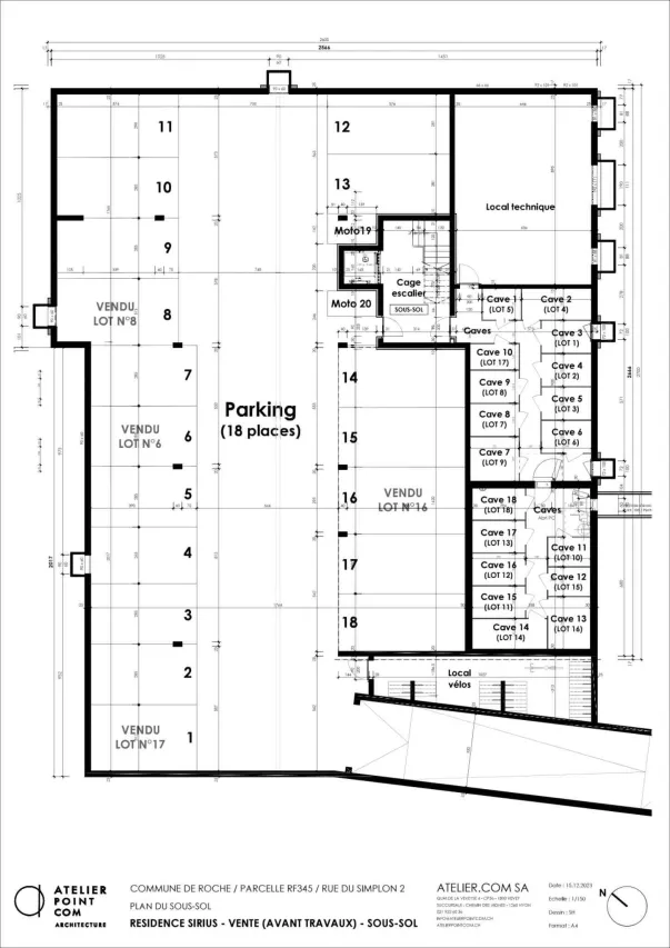
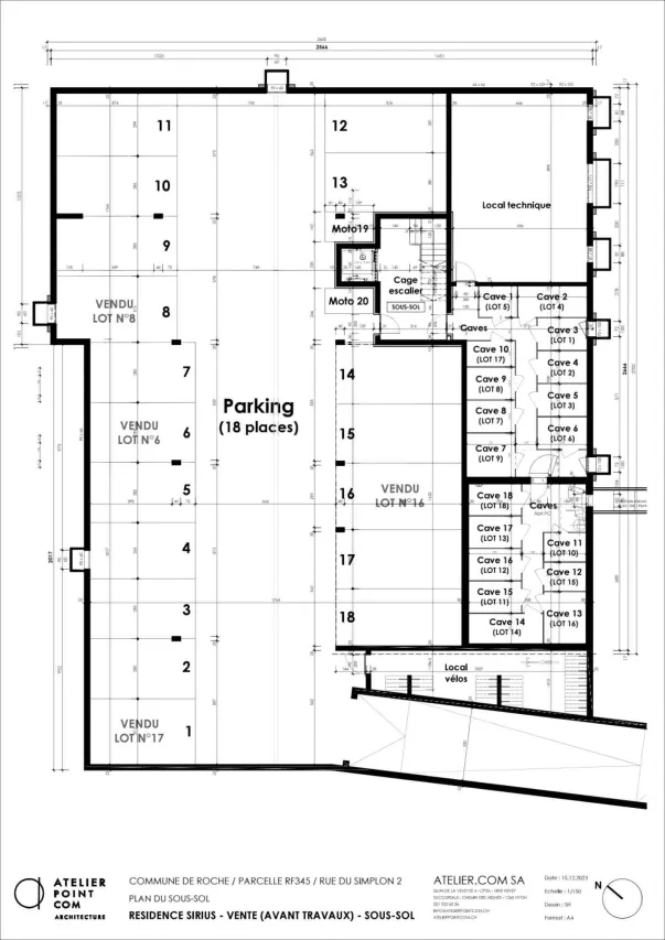
- Cave
Une place de parc intérieure est disponible en sus du prix à 35'000.-
Début des travaux février 2025.
Livraison automne 2026.
Lien vers le site web de la promotion : https://residence-sirius.ch/index.php
Concerne : Appartements à vendre 3.5 pièces à Roche-vd Vaud