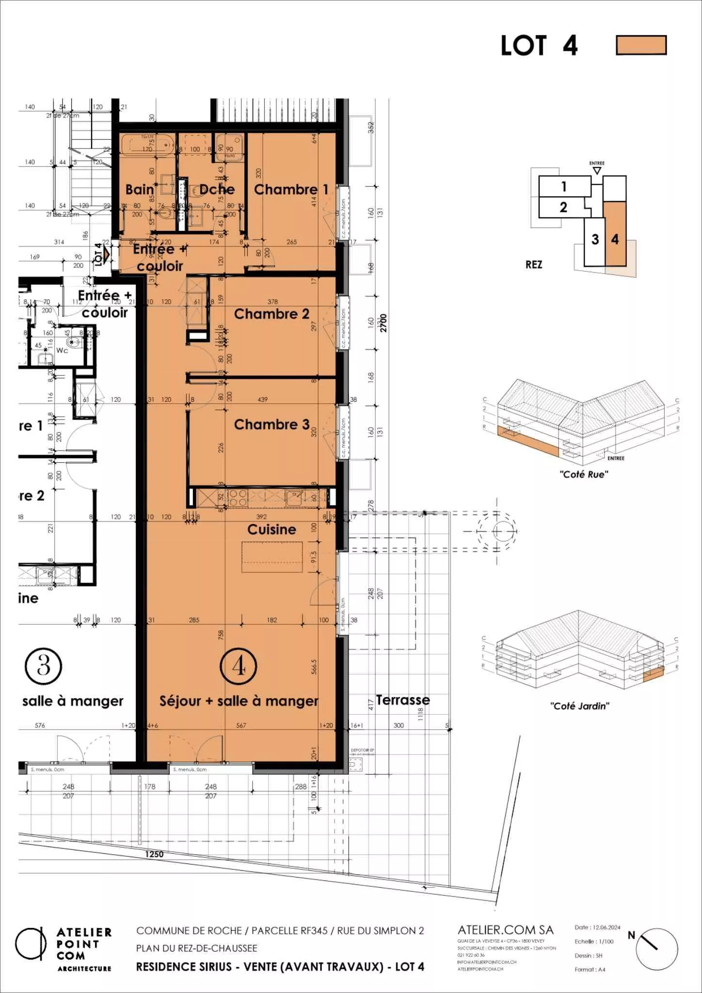
Dans une PPE de 18 appartements, ce 4,5 pièces en rez-de-chaussée bénéficie d'un jardin d'environ 180 m2, d'une surface habitable de 108,4 m2 et d'une terrasse de 30 m2.
Il est composé comme suit :
- Hall d'entrée et couloir
- 3 chambres à coucher
- Salle de bains
- Salle de douche
- Cuisine ouverte
- Séjour/salle à manger accès sur la terrasse
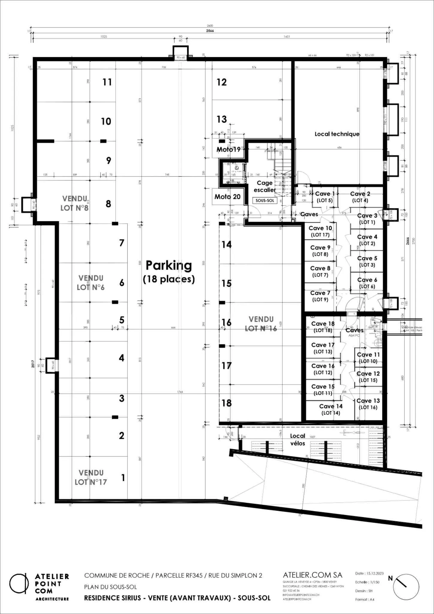
- Cave
Une place de parc intérieure est disponible en sus du prix à 35'000.-
Début des travaux février 2025.
Livraison automne 2026.
Lien vers le site web de la promotion : https://residence-sirius.ch/index.php
Concerne : Appartements à vendre 4.5 pièces à Roche-vd Vaud