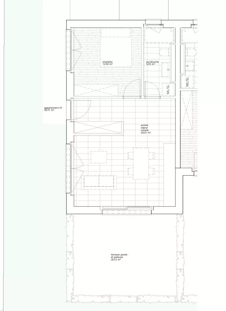
L'appartement se compose de :
- Un séjour lumineux avec accès direct à son espace privatif extérieur
- Une cuisine ouverte, entièrement équipée
- Une chambre confortable
- Une salle de bains moderne avec douche ou baignoire
- Salle de bain avec espace buanderie privatif
- Une entrée avec armoire murale
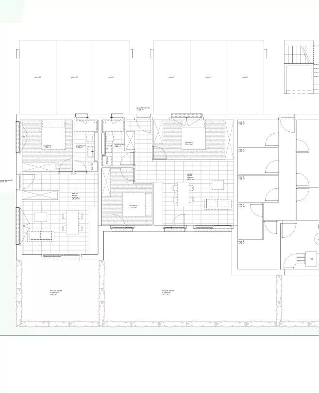
- Place de parc disponible en supplément à Chf 20'000.00
- Une cave à disposition
- ...
Idéal pour une personne seule, un couple ou un(e) retraité(e) recherchant tranquillité et confort tout en restant proche de la vie locale.
Début des travaux en octobre.
N'hésitez pas à venir découvrir ce joli projet.
Détails des pièces
- Buanderie privée
- Hall d'entrée
- Salle à manger
- Séjour
Chambres
- Chambre double / parentale : 1
Prix en sus par box, garage et place de parc
- Place de parc couverte
- CHF 20'000.-
Environnement
- Calme | Tranquille
- Campagne
- Village
Proximité
- Centres commerciaux
- Commerces
- Gare
- Restaurant
- Rue piétonne
- Sortie autoroute
Intérieur
- Armoires encastrées hall
- Contemporain
- Cuisine ouverte
Equipement technique
- Chauffage principal
- Pompe à chaleur air-eau
- Mode de chauffage
- Au sol
N'hésitez pas à nous contacter pour davantage d'informations.
Au plaisir de vous rencontrer.
Nos meilleures salutations.
Concerne : Appartements à vendre 2.5 pièces à Saxon Valais