La parcelle, située au même niveau que le Casino - un bâtiment classé au patrimoine - garantit une vue imprenable et protégée sur le parc, sans risque d'obstruction par de futures constructions.
Les aménagements intérieurs peuvent être personnalisés selon vos envies, conformément au descriptif annexé.
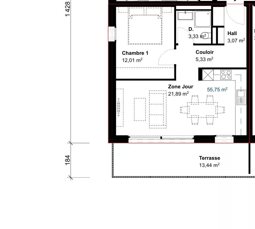
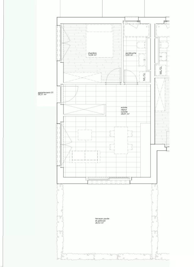
Plan disponible : Appartement Bâtiment (B), PPE LOT N° 59
Les informations sont élaborées à partir des données fournies par le vendeur, elles ont un caractère informatif.
Document non contractuel .Ce bien immobilier reste sous réserve de changement de prix, de disponibilité et de retrait de la vente sans préavis.
WWW.EDEN-IMMOBILIER.CH
©copyright Tous droits réservés
CP 414 - Rue d'Octodure 15 - 1920 Martigny - info@eden-immobilier.ch - www.eden-immobilier.ch
Concerne : Appartements à vendre 3.5 pièces à Saxon Valais