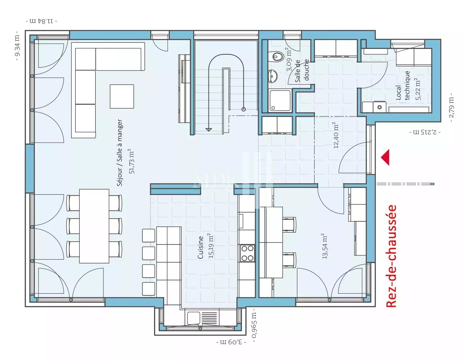
Les pièces de la maison se répartissent comme suit :
Rez-de-chaussée
- Un hall d'entrée
- Un bureau
- Une salle de douche
- Un local technique
- Une cuisine ouverte
- Un séjour/coin à manger
Etage
- Deux chambres
- Une chambre parentale avec dressing et une salle de bain (baignoire, douche, wc et lavabo)
- Une salle de douche (douche, wc et lavabo)
Type de chauffage : pompe à chaleur
Distribution : chauffage au sol
Construction au label "Minergie" avec structure en bois
Prix d'appel sans terrain : CHF 590'000.-.
Concerne : Maisons à vendre 5.5 pièces à Monthey Valais