Surfaces :
- Surface plancher : 236.74 m²
- SBPU : 172.66 m²
- Surface habitable nette : 133.08 m²
- Surface de vente : 199.02 m²
Le chalet A voisin a été déjà construit.
Un projet personnalisable sur un terrain de 515 m²
Cette nouvelle promotion prévoit initialement une villa de 5.5 pièces sur un terrain de 515 m². Nous pouvons cependant adapter et moduler la conception intérieure des plans selon vos souhaits, pour créer l'espace idéal pour vous et votre famille.
Disposition des pièces
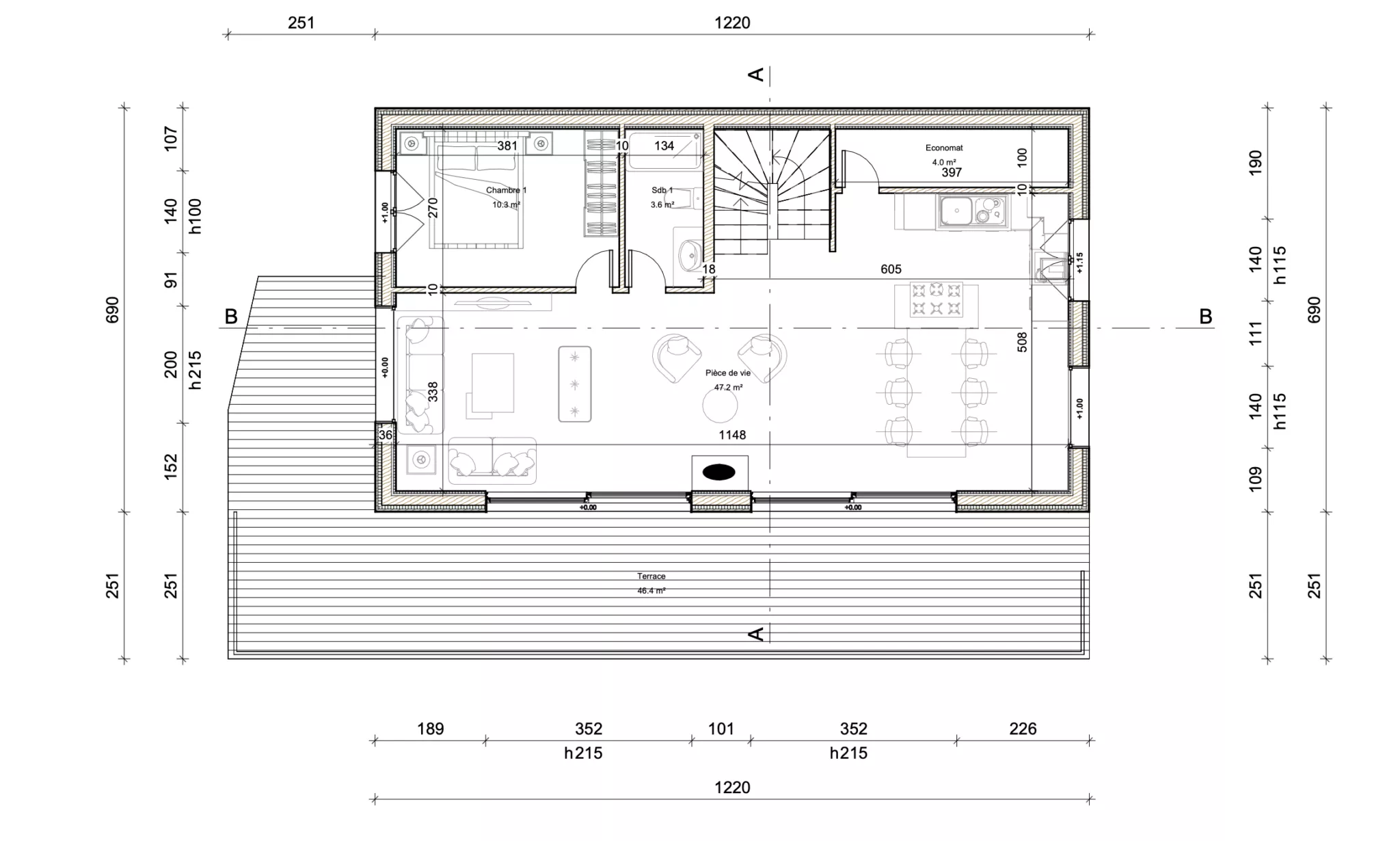
Au rez-de-chaussée
- hall d'entrée
- 1 chambre
- 1 salle de bains
- une buanderie
- une cave
En rez-de-jardin :
- une pièce de vie spacieuse de 47 m² avec une cuisine ouverte.
- 1 chambre avec sa salle de bains privative.
- L'extérieur offre une magnifique terrasse de 46 m² avec vue sur les montagnes et la vallée.
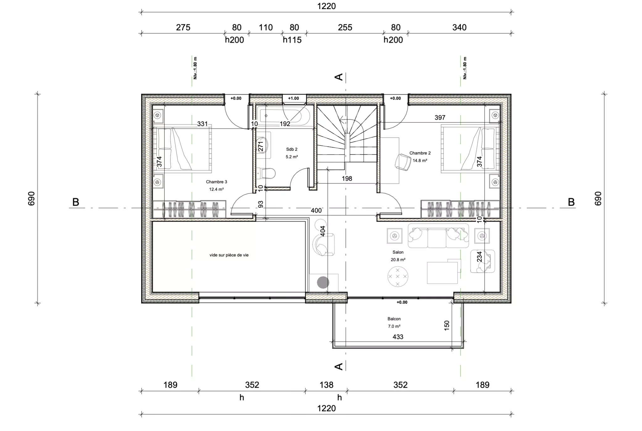
À l'étage :
- 2 chambres dont une avec un balcon privatif
- 1 salon de 20 m2 pouvant être aménagé en bureau
- 1 salle de bains
Places de parking : - un garage double pour 2 voitures ainsi qu'une place de parc extérieure inclus.
Accès pratique et activités à proximité
Golf : 8 minutes en voiture
Pistes des pistes de ski : 12 minutes en voiture
Sion : 20 minutes en voiture / 20 minutes en bus
Pour toute demande d'information, n'hésitez pas à nous contacter :
Agence Claire Immobilier
+41 79 260 00 04
contact@claire-immobilier.ch
Concerne : Maisons à vendre 5.5 pièces à Icogne Valais