Chaque logement offre un cadre de vie confortable et fonctionnel, dans un environnement calme, tout en étant proche des écoles, commerces et services de Savièse.
Environnement naturel superbe, balades à portée de main, et disponibilité assurée pour les visites.
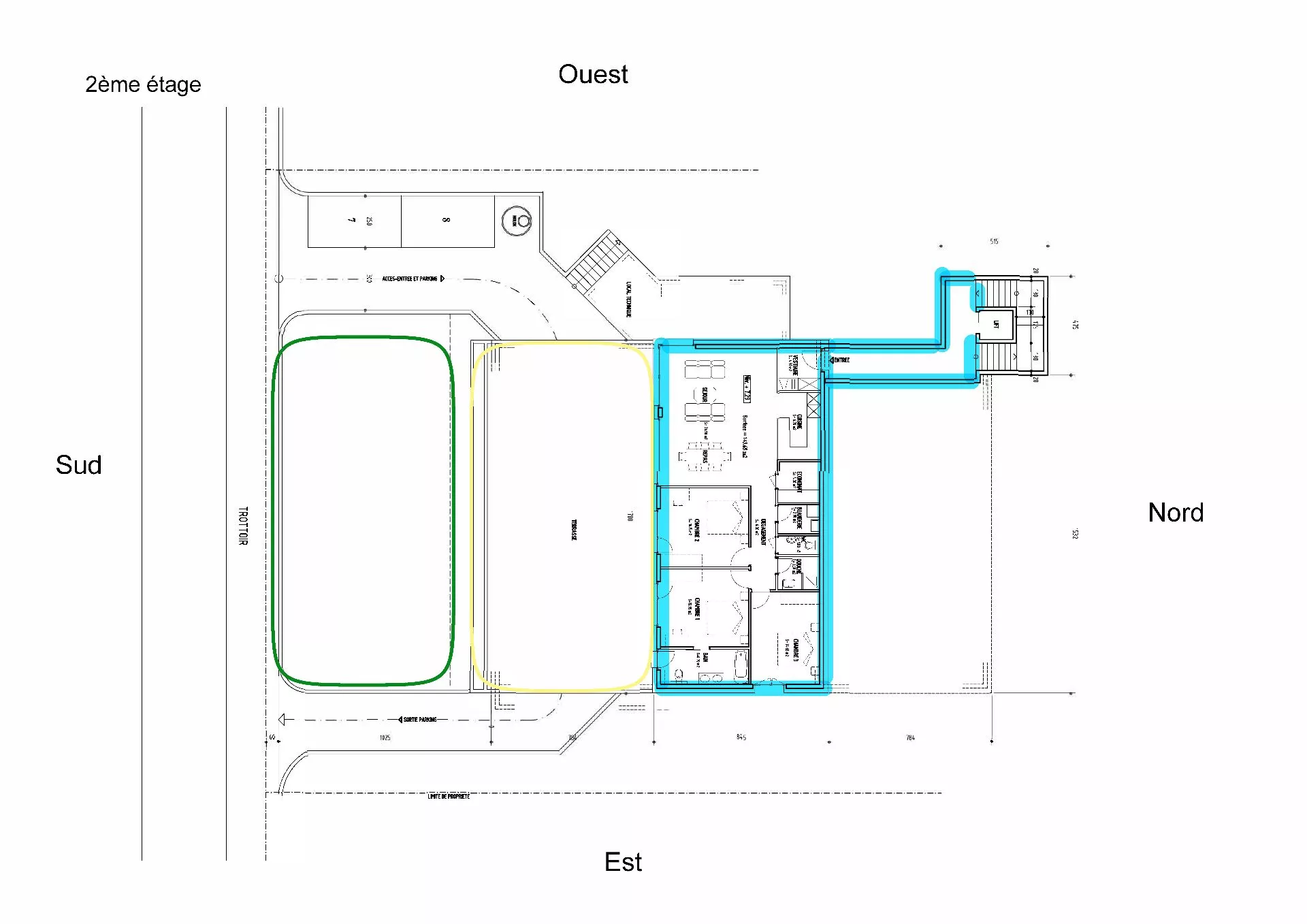
Description de l'appartement :
- 1 hall d'entrée
- 1 cuisine ouverte avec coin à manger
- 1 économat
- 1 séjour
- 1 chambre parentale avec salle de bain / WC / lavabo privative
- 2 chambres
- 1 wc / lavabo
- 1 salle de douche / lavabo
- 1 buanderie
- 1 grande terrasse privative 70 m2
En sus du prix à disposition :
- 6 places de parc intérieures à CHF 40'000.- chacune
- 2 places de parc extérieures visiteurs
Début des travaux 2025
Livraison dés Janvier 2027
A disposition pour tout renseignement complémentaire à info@roquimmo.ch ou au 027 565 09 69 (en cas d'absence au bureau l'appel est dévié sur le portable)
Concerne : Appartements à vendre 4.5 pièces à Saviese Valais